- 3 Bedrooms (2 double, 1 single)
- Gas central heating and double glazing
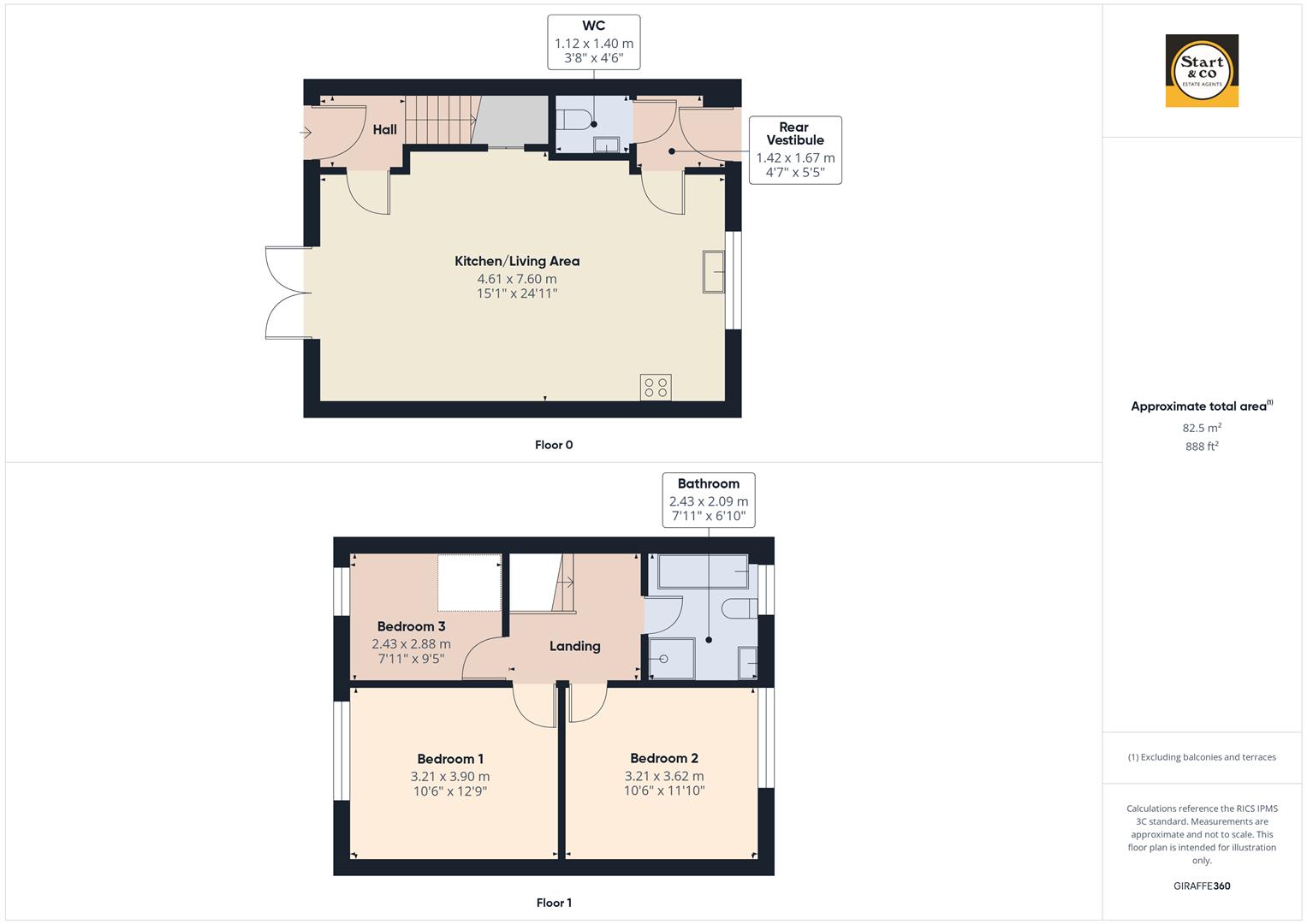
- 888 ft
- IMMACULATE THROUGHOUT
- Downstairs WC
- Open plan ground floor living
- South facing front seating garden with views
- Open front aspect with Countryside views
- Popular peaceful location
- VACANT POSSESSION – NO ONWARD CHAIN
Full Description
IMMACULATELY PRESENTED 3 BEDROOM MODERN HOUSE OVERLOOKING THE COMMUNAL GREEN AND RIVER GANNEL COUNTRYSIDE WITH FRONT AND REAR GARDENS AND 3 PRIVATE PARKING SPACES
This delightful family home is presented in “as new” condition on this popular and convenient modern estate constructed by a respected local builder in 2017. The front garden serves as more of a “rear” garden as it easy to access the property from the rear parking through the rear garden. This leaves the front garden and deck, accessed off double lounge doors, for South facing seating and dining overlooking the common maintained green and the River Gannel Countryside.
The accommodation on the ground floor is predominantly open plan with 34sqm lounge/kitchen featuring a breakfast bar and ample room for a dining table leading into the comprehensively fitted kitchen with appliances and wood worktops. A rear vestibule provides access to the back garden/parking bays and also the downstairs WC. The first floor accommodation features a generous landing providing access to the three bedrooms and the bathroom. The property is in excellent decorative order throughout, having recently been decorated with new carpets fitted.
To the rear of the garden, there are 2 generous wide private parking spaces and a timber bin store. No.16 also has the added benefit of another private 3rd parking space for visitors a short walk from the property.
The property has no onward chain and is available with immediate vacant possession.
Tenure
Freehold
Services
All mains
Council Tax
Band B
Estate Charges
The communal estate management charge amounts to approximately £220 per annum.
Viewing
Please contact us on 01637 875847 if you wish to arrange a viewing appointment for this property, or require further information.
Energy Performance Certificate
Click here to view the Energy Efficiency Rating and Environmental Impact Rating for this property.
Disclaimer
Start & Co endeavour to maintain accurate depictions of properties in Virtual Tours, Floor Plans and descriptions, however, these are intended only as a guide and purchasers must satisfy themselves by personal inspection.
This delightful family home is presented in “as new” condition on this popular and convenient modern estate constructed by a respected local builder in 2017. The front garden serves as more of a “rear” garden as it easy to access the property from the rear parking through the rear garden. This leaves the front garden and deck, accessed off double lounge doors, for South facing seating and dining overlooking the common maintained green and the River Gannel Countryside.
The accommodation on the ground floor is predominantly open plan with 34sqm lounge/kitchen featuring a breakfast bar and ample room for a dining table leading into the comprehensively fitted kitchen with appliances and wood worktops. A rear vestibule provides access to the back garden/parking bays and also the downstairs WC. The first floor accommodation features a generous landing providing access to the three bedrooms and the bathroom. The property is in excellent decorative order throughout, having recently been decorated with new carpets fitted.
To the rear of the garden, there are 2 generous wide private parking spaces and a timber bin store. No.16 also has the added benefit of another private 3rd parking space for visitors a short walk from the property.
The property has no onward chain and is available with immediate vacant possession.
Tenure
Freehold
Services
All mains
Council Tax
Band B
Estate Charges
The communal estate management charge amounts to approximately £220 per annum.
Viewing
Please contact us on 01637 875847 if you wish to arrange a viewing appointment for this property, or require further information.
Energy Performance Certificate
Click here to view the Energy Efficiency Rating and Environmental Impact Rating for this property.
Disclaimer
Start & Co endeavour to maintain accurate depictions of properties in Virtual Tours, Floor Plans and descriptions, however, these are intended only as a guide and purchasers must satisfy themselves by personal inspection.

