- Close to Newquay town centre
- Ground floor one bedroom flat
- Walking distance to beaches, shops and amenities
- Ideal buy to let or first time buy
- Gas central heating and double glazing
- Approx rental income of £650 pcm
- 295sq ft
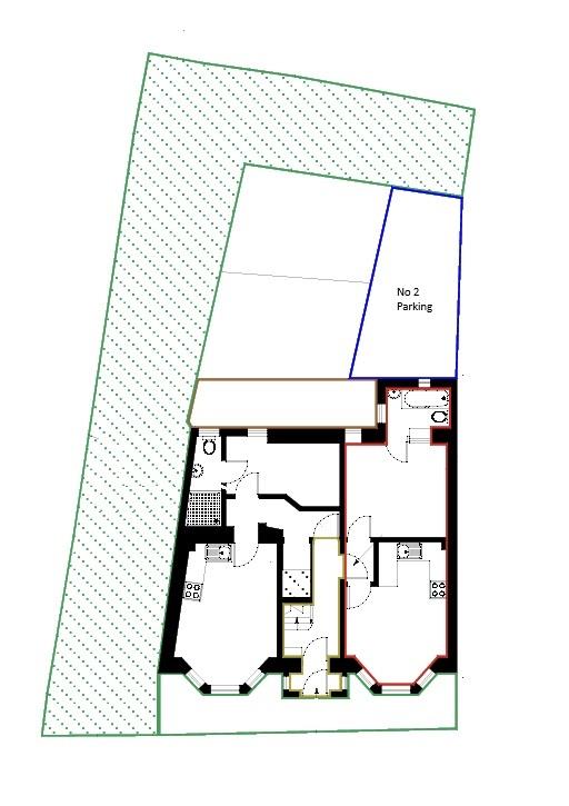
- Private off road parking space to the rear
Full Description
PARKING SPACE | IDEAL INVESTMENT BUY | Ground floor one bedroom apartment equidistant to Newquay town centre and Fistral beach with local amenities on the doorstep.
Tower Road is a very well positioned street in Newquay almost equidistance from Fistral Beach and Newquay Town Centre. Newquay Town has recently had an influx of independent Cafes, Coffee Shops and Bars that has made the town an even more popular holiday destination with a unique multicultural and inclusive feel. This, coupled with improved transport links via the A30 and Newquay Airport has really made it one of the top tourist destinations in Cornwall. As a result, as well as the flexible modern nature of working, has also led to an increased number of families moving to the area to enjoy the natural beauty of the coastline on the doorstep.
The flat is accessed via a communal entrance hallway leading to the private entrance door. The front aspect lounge/kitchen leads through to the rear aspect bedroom which further extends to the bathroom room.
Tenure
Leasehold. The property will be offered on a new 999 year lease with a peppercorn ground rent and an annual service charge of £500 to include block buildings insurance. The freehold of the 4 flats will be passed to the owners upon the sale of the 4th unit.
Pets
Pets are permitted in the building.
Letting
Holiday and permanent letting is permitted.
Council Tax
Band A
Services
All mains
Broadband and Mobile Coverage Availability
Fastest available download speed: up to 1000 Mbs
Mobile coverage: Likely/limited
(Source: OFCOM)
Viewing
Please contact us on 01637 875847 if you wish to arrange a viewing appointment for this property, or require further information.
Energy Performance Certificate
Click here to view the Energy Efficiency Rating and Environmental Impact Rating for this property.
Disclaimer
Start & Co endeavour to maintain accurate depictions of properties in Virtual Tours, Floor Plans and descriptions, however, these are intended only as a guide and purchasers must satisfy themselves by personal inspection.
Tower Road is a very well positioned street in Newquay almost equidistance from Fistral Beach and Newquay Town Centre. Newquay Town has recently had an influx of independent Cafes, Coffee Shops and Bars that has made the town an even more popular holiday destination with a unique multicultural and inclusive feel. This, coupled with improved transport links via the A30 and Newquay Airport has really made it one of the top tourist destinations in Cornwall. As a result, as well as the flexible modern nature of working, has also led to an increased number of families moving to the area to enjoy the natural beauty of the coastline on the doorstep.
The flat is accessed via a communal entrance hallway leading to the private entrance door. The front aspect lounge/kitchen leads through to the rear aspect bedroom which further extends to the bathroom room.
Tenure
Leasehold. The property will be offered on a new 999 year lease with a peppercorn ground rent and an annual service charge of £500 to include block buildings insurance. The freehold of the 4 flats will be passed to the owners upon the sale of the 4th unit.
Pets
Pets are permitted in the building.
Letting
Holiday and permanent letting is permitted.
Council Tax
Band A
Services
All mains
Broadband and Mobile Coverage Availability
Fastest available download speed: up to 1000 Mbs
Mobile coverage: Likely/limited
(Source: OFCOM)
Viewing
Please contact us on 01637 875847 if you wish to arrange a viewing appointment for this property, or require further information.
Energy Performance Certificate
Click here to view the Energy Efficiency Rating and Environmental Impact Rating for this property.
Disclaimer
Start & Co endeavour to maintain accurate depictions of properties in Virtual Tours, Floor Plans and descriptions, however, these are intended only as a guide and purchasers must satisfy themselves by personal inspection.

