- Popular residential development with good links in and out of the town centre
- Gas central heating, uPVC double glazing with solar assisted hot water
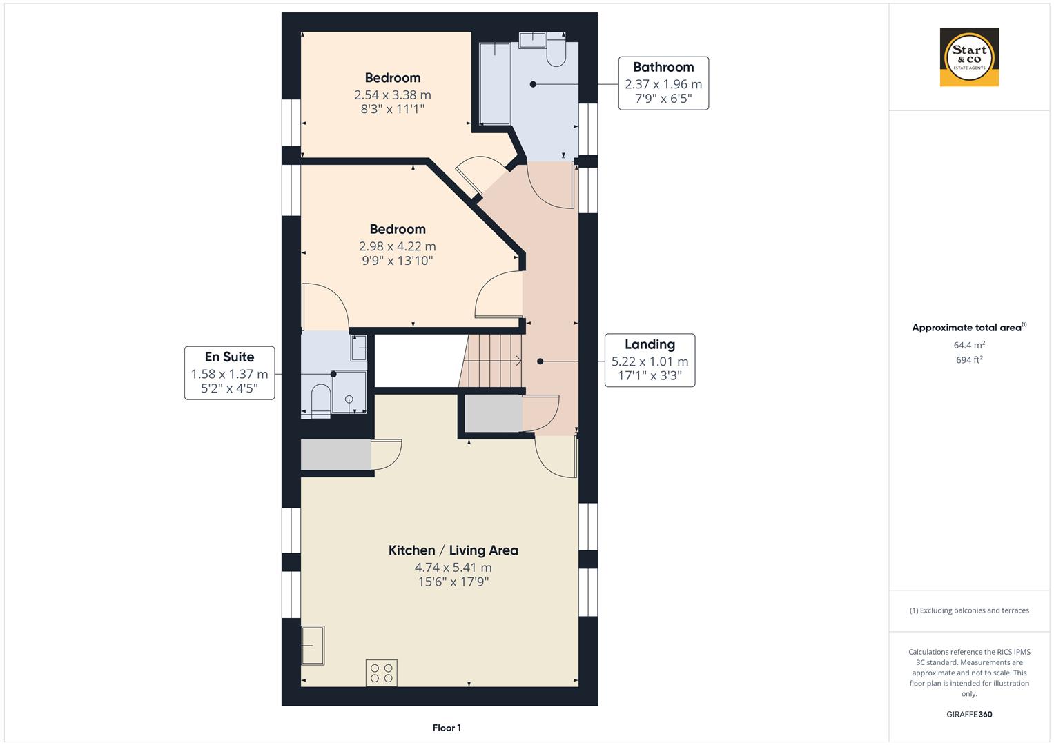
- 2 double bedrooms with a master en-suite shower room
- Garage with allocated parking space
- Great first time buy or investment property with a potential rental income of £995pcm
- Spacious accommodation throughout ideal for couples or young families
- No onward chain
Full Description
VACANT CHAIN FREE POSSESSION | GARAGE | 2 double bedroom coach house with open plan living accommodation, garage, and gas central heating, located on a popular residential estate within walking distance to Newquay Town and the schools.
38 Cavendish Crescent is a modern coach-house located on the popular Trevenson Meadows development. Approximately 2 miles from the Town Centre, the property is in walking distance to a range of shopping facilities, restaurants, Newquay Orchard, bars and the amazing coastline that Newquay has to offer, whilst offering direct access out of the town and to the local primary and secondary schools.
From the ground floor entrance hall, the property has a small downstairs hallway before ascending the staircase to the first floor living accommodation. The hallway towards the back of the property provides access to all rooms and has a large cupboard housing the pressurised cylinder and control panel for the solar unit.
The open plan lounge/kitchen/diner is very light thanks to the dual aspect North to South bayed windows. The kitchen has a range of flat white units with brushed steel handles under a granite effect laminate worktop providing recessed for all the expected white good and includes an electric oven and electric hob unit. There is ample room for a 6 seater dining room table and a corner storage cupboard houses the gas boiler which provides the heating throughout the apartment.
There are 2 double bedrooms with front aspect windows with the master having a shower en-suite and there is a family bathroom with bath and white bathroom suite.
Outside the property has a garage adjacent to the entrance stairwell and benefits from an electric and water supply.
Tenure
Freehold. Three of the ground floor garages are leased to neighbouring properties on a 999 year lease with 1/8th insurance contribution to the building insurance.
There is an estate charge of £139 Per Annum.
Services
All mains
Council Tax
Band B
Viewing
Please contact us on 01637 875847 if you wish to arrange a viewing appointment for this property, or require further information.
Energy Performance Certificate
Click here to view the Energy Efficiency Rating and Environmental Impact Rating for this property.
Disclaimer
Start & Co endeavour to maintain accurate depictions of properties in Virtual Tours, Floor Plans and descriptions, however, these are intended only as a guide and purchasers must satisfy themselves by personal inspection.
38 Cavendish Crescent is a modern coach-house located on the popular Trevenson Meadows development. Approximately 2 miles from the Town Centre, the property is in walking distance to a range of shopping facilities, restaurants, Newquay Orchard, bars and the amazing coastline that Newquay has to offer, whilst offering direct access out of the town and to the local primary and secondary schools.
From the ground floor entrance hall, the property has a small downstairs hallway before ascending the staircase to the first floor living accommodation. The hallway towards the back of the property provides access to all rooms and has a large cupboard housing the pressurised cylinder and control panel for the solar unit.
The open plan lounge/kitchen/diner is very light thanks to the dual aspect North to South bayed windows. The kitchen has a range of flat white units with brushed steel handles under a granite effect laminate worktop providing recessed for all the expected white good and includes an electric oven and electric hob unit. There is ample room for a 6 seater dining room table and a corner storage cupboard houses the gas boiler which provides the heating throughout the apartment.
There are 2 double bedrooms with front aspect windows with the master having a shower en-suite and there is a family bathroom with bath and white bathroom suite.
Outside the property has a garage adjacent to the entrance stairwell and benefits from an electric and water supply.
Tenure
Freehold. Three of the ground floor garages are leased to neighbouring properties on a 999 year lease with 1/8th insurance contribution to the building insurance.
There is an estate charge of £139 Per Annum.
Services
All mains
Council Tax
Band B
Viewing
Please contact us on 01637 875847 if you wish to arrange a viewing appointment for this property, or require further information.
Energy Performance Certificate
Click here to view the Energy Efficiency Rating and Environmental Impact Rating for this property.
Disclaimer
Start & Co endeavour to maintain accurate depictions of properties in Virtual Tours, Floor Plans and descriptions, however, these are intended only as a guide and purchasers must satisfy themselves by personal inspection.

